100%安全
服務完成或退款
- 您只需支付標價,沒有任何隱藏費用。
- 我們使用第三方金流系統,在您確認收件後才撥款。
- 現在下單可以享有3%熊幣回饋。
服務描述
『計費方式』
不含丈量、放樣,以下金額未稅
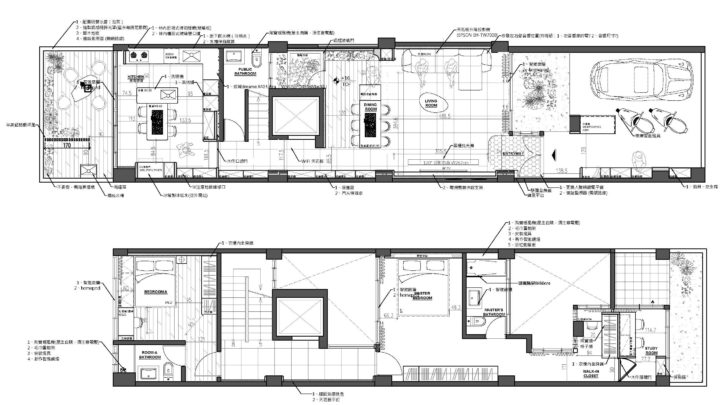
→平面配置圖:
15坪內,$1500/張
25坪內,$3000/張
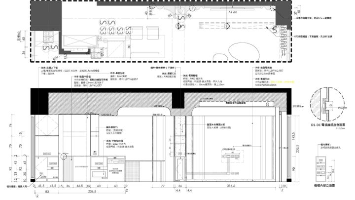
→平面、立面施工圖
$2000/坪
→3D模型
純建模,$600/坪
(需有平立面圖CAD檔、氛圍圖、材質圖、家
檢舉這項服務
檢舉這項服務
未登錄
『計費方式』
不含丈量、放樣,以下金額未稅
→平面配置圖:
15坪內,$1500/張
25坪內,$3000/張
→平面、立面施工圖
$2000/坪
→3D模型
純建模,$600/坪
(需有平立面圖CAD檔、氛圍圖、材質圖、家